2b
NEWS
PROJECTS
COMPETITION
URBAN
PUBLIC SPACE
ARCHITECTURE
TRANSFORMATION
CLINIQUE DENTAIRE DU LAC
MAISON AU GAOU BÉNAT
MAISON T
CLINIQUE DENTAIRE ARDENTIS EPFL
MAISON RUTSCHMANN
MAISON PUJOL
LA MAISON CLAIRE
TOUR MOINAT
VILLA BIERMANN
TERRASSE A CULLY
SICHTBAR
HAUS BIHLMAIER
STRUCTURE
OUTPUTS
ACADEMICS
CONTACTS
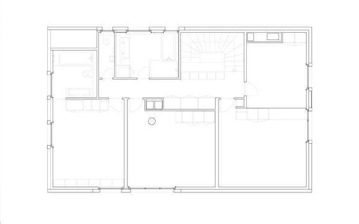
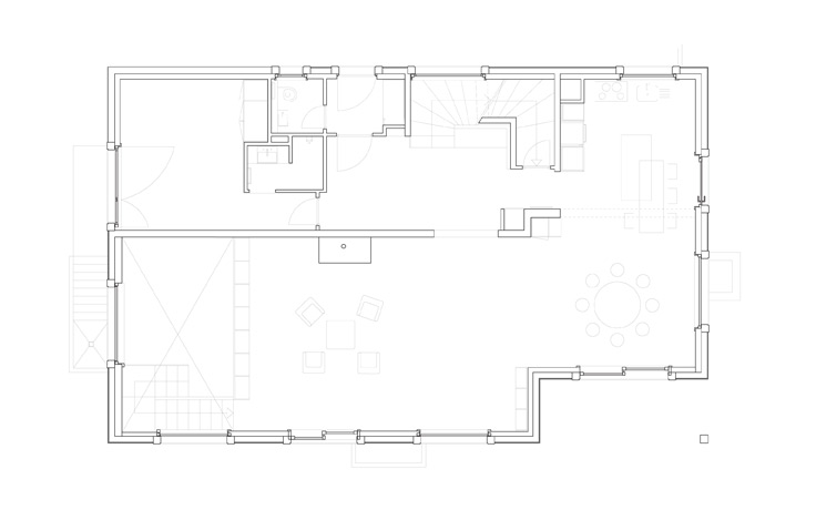
Maison Rutschmann
Lausanne
Projet 2011
Réalisation 2012
Team 2b
S.Bender
Ph.Béboux
C.Jung
L.Maccioni
C.Becker
Photographe
Annik Wetter, Genève
<<
<
idx
/
count
>