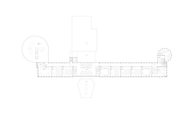
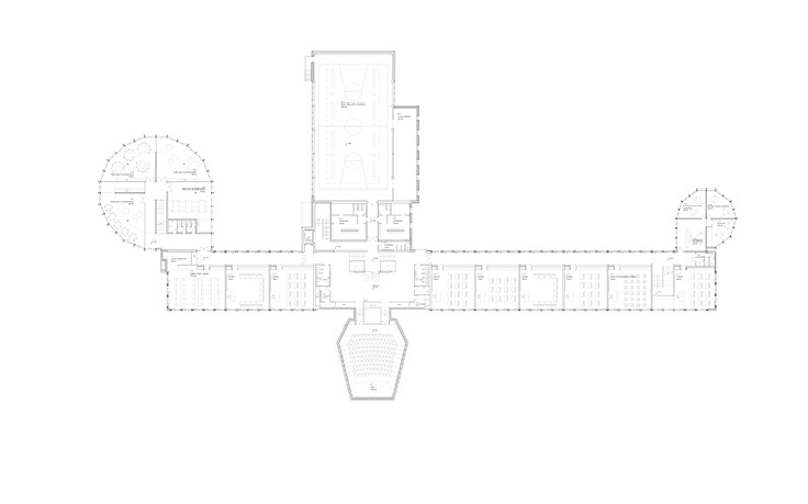
• Rénovation et extension de l'ècole Liotard, Genève

    Maître de l’ouvrage
    Ville de Genève

    Team 2b
    S.Bender
    Ph.Béboux
    N.Berthier
    G.Ferretti
    L.Hoser
    T. Reass

    avec
    Direction des travaux
    Architech, Genève
    Ingénieur civil
    Ingeni, Lausanne
    Architecte-paysagiste
    Cécile Albana Presset, Lausanne

    Images 3D
    2b architectes
<< < idx/count >